服務熱線
136-7911-1256
產品簡介:
松套傳力接頭是在法蘭松套補償接頭的基礎上增設法蘭短管及傳力螺桿而成,次類型的補償接頭與松套補償接頭和松套限位補償接頭不同的是它的補償量是指在安裝及拆卸過程中的調節量,一旦將所有的螺母擰緊,它是剛性連接的,可以傳遞軸心力,從而保護閥門、泵等設備。
銷售熱線:
13679111256
產品介紹
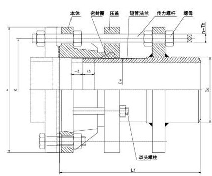
名稱:CF型單法蘭松套傳力接頭
CF型單法蘭松套傳力接頭公稱通經:DN50-DN3200
CF型單法蘭松套傳力接頭工作壓力:0.6-1.6MPA
CF型單法蘭松套傳力接頭使用介質:水、污水
CF型單法蘭松套傳力接頭密封材料:NBR
CF型單法蘭松套傳力接頭制造標準:GB12465-2007
產品特點
性能特點:
松套傳力接頭是在法蘭松套補償接頭的基礎上增設法蘭短管及傳力螺桿而成,次類型的補償接頭與松套補償接頭和松套限位補償接頭不同的是它的補償量是指在安裝及拆卸過程中的調節量,一旦將所有的螺母擰緊,它是剛性連接的,可以傳遞軸心力,從而保護閥門、泵等設備。
傳力接頭是泵、閥門等設備與管道連接的新產品,通過全螺栓把它們連接起來,使其成為一個整體,并有一定的位移量,這樣就可以在安裝維修時,根據現場安裝尺寸進行調整,在工作時,可以把軸向推力傳還至整個管道。這樣不僅提高工作效率,而切對泵、閥們等設備起到一定保護作用。
CF型單法蘭松套傳力接頭是有松套伸縮接頭和短管法蘭、傳力螺桿等構件組成,它能傳遞被連接件的壓力推力(盲板力)和補償管路誤差,不能吸收軸向位移。重要用于泵、閥門、管路等附件的松套連接。
安裝簡要說明
CF型單法蘭松套傳力接頭適用于一面與法蘭連接,一面與管道焊接。安裝時調節產品兩端與管道或法蘭的安裝長度,安裝和焊接完畢后,對角依次均勻擰緊壓蓋螺栓,使其成為一個整體,并有一定的位移量,方便安裝維修,可根據現場尺寸進行調整。在工作時可以把軸向推力傳遞至整個管道。
傳力接頭分類有:單發蘭松套傳力接頭、雙法蘭松套傳力接頭、可拆式雙法蘭松套傳力接頭。
傳力接頭材質:主要有Q235碳鋼、不銹鋼、鑄鋼、球墨鑄鐵等。不同的用途選用不同的材質和型號。

產品性能
CF型單法蘭松套傳力接頭材料表
| 序號 | 名稱 | 數量 | 材料 |
| 1 | 本體 | 1 | QT400-15、Q235A、ZG230-450、20 |
| 2 | 密封圈 | 1 | NBR |
| 3 | 壓蓋 | 1 | QT400-15、Q235A、ZG230-450、20 |
| 4 | 短管法蘭 | 1 | Q235A、20、16Mn |
| 5 | 螺柱 | n | Q235A、35、1Cr18Ni9Ti |
| 6 | 螺母 | 5n | Q235A、20、1Cr18Ni9Ti |
CF型單法蘭松套傳力接頭安裝數據表
| 公稱通徑DN | 管子外徑 |
外形尺寸 |
法 蘭 連 接 尺 寸 |
|||||||||
|
L |
△L |
0.6MPa |
1.0MPa |
|||||||||
| Dw |
D |
D1 |
n-Th |
b |
D |
D1 |
n-Th |
b |
||||
| 65 |
76 |
76 |
400 | 40 | 160 | 130 | 4-M12 | 16 | 185 | 145 | 4-M16 | 20 |
| 80 | 89 | 89 | 190 | 150 | 4-M16 | 18 | 200 | 160 | 8-M16 | 22 | ||
| 100 | 114 | 114 | 210 | 170 | 220 | 180 | 24 | |||||
| 125 | 140 | 140 | 240 | 200 | 8-M16 | 20 | 250 | 210 | 26 | |||
| 150 | 168 | 168 | 265 | 225 | 285 | 240 | 8-M20 | |||||
| 200 | 219 | 219 | 320 | 280 | 22 | 340 | 295 | 28 | ||||
| 250 | 273 | 273 | 375 | 335 | 12-M16 | 24 | 395 | 350 | 12-M20 | |||
| 300 | 325 | 325 | 420 | 50 | 440 | 395 | 12-M20 | 24 | 445 | 400 | 12-M20 | 28 |
| 350 | 377 | 377 | 490 | 445 | 26 | 505 | 460 | 16-M20 | 30 | |||
| 400 | 426 | 426 | 540 | 495 | 16-M20 | 28 | 565 | 515 | 16-M24 | 32 | ||
| 450 | 480 | 480 | 595 | 550 | 615 | 565 | 20-M24 | 32 | ||||
| 500 | 530 | 530 | 645 | 600 | 20-M20 | 30 | 670 | 620 | 34 | |||
| 600 | 630 | 630 | 440 | 755 | 705 | 20-M24 | 780 | 725 | 20-M27 | 36 | ||
| 700 | 720 | 720 | 860 | 810 | 24-M24 | 32 | 895 | 840 | 24-M27 | 40 | ||
| 800 | 820 | 826 | 600 | 60 | 975 | 920 | 24-M27 | 34 | 1015 | 950 | 24-M30 | 44 |
| 900 | 920 | 926 | 1075 | 1020 | 24-M27 | 36 | 1115 | 1050 | 28-M30 | 46 | ||
| 1000 | 1020 | 1026 | 1175 | 1120 | 28-M27 | 1230 | 1160 | 28-M33 | 50 | |||
| 1200 | 1220 | 1226 | 620 | 1405 | 1340 | 32-M30 | 40 | 1455 | 1380 | 32-M36 | 56 | |
| 1400 | 1420 | 1428 | 1630 | 1560 | 36-M33 | 44 | 1675 | 1590 | 36-M39 | 62 | ||
| 1600 | 1620 | 1628 | 630 | 1830 | 1760 | 40-M33 | 48 | 1915 | 1820 | 40-M4 | 68 | |
| 1800 | 1820 | 1828 | 2045 | 1970 | 44-M36 | 50 | 2115 | 2020 | 44-M45 | 70 | ||
| 2000 | 2020 | 2030 | 650 | 2265 | 2180 | 48-M39 | 54 | 2325 | 2230 | 48-M45 | 74 | |
| 2200 | 2220 | 2230 | 2475 | 2390 | 52-M39 | 60 | 2550 | 2440 | 52-M52 | 80 | ||
| 2400 | 2420 | 2430 | 2685 | 2600 | 56-M39 | 62 | 2760 | 2650 | 56-M52 | 82 | ||
| 2600 | 2620 | 2630 | 750 | 80 | 2905 | 2810 | 60-M45 | 64 | 2960 | 2850 | 60-M52 | 88 |
| 2800 | 2820 | 2830 | 3115 | 3020 | 64-M45 | 68 | 3480 | 3070 | 64-M52 | 94 | ||
| 3000 | 3020 | 3030 | 3315 | 3220 | 68-M45 | 70 | 3405 | 3290 | 68-M56 | 100 | ||
上一篇:
C2F型雙法蘭松套傳力接頭聯系人: 李經理
電話: 13679111256
QQ:603033916
座機: 02983331833
地址: 西安市未央區大明宮北辰五金批發基地1區7排11-14號
掃一掃關注我們