服務熱線
136-7911-1256
產品簡介:
我廠專業生產柔性套管式伸縮器,技術雄厚,流程精湛、設備齊全,RS型柔性套管式伸縮器具有一定的科學性,RS型柔性套管式伸縮器、CS型熱力伸縮器、SSQ型限位防拉脫伸縮器、管道伸縮器、法蘭限位伸縮器是通過國家認證的主導產品,RS型柔性套管式伸縮器使用壽命長、方便、耐用、耐壓、耐腐,耐高溫等性能,質高價優是您理想的選擇,RS型柔性套管式伸縮器讓您買得放心、用的舒心。
銷售熱線:
13679111256
產品介紹
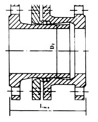
名稱:RS型柔性套管式伸縮器
我廠生產柔性套管式伸縮器,技術雄厚,流程精湛、設備齊全,RS型柔性套管式伸縮器具有一定的科學性,RS型柔性套管式伸縮器、CS型熱力伸縮器、SSQ型限位防拉脫伸縮器、管道伸縮器、法蘭限位伸縮器是通過認證的主導產品,RS型柔性套管式伸縮器使用壽命長、方便、耐用、耐壓、耐腐,耐高溫等性能,質高價優是您理想的選擇,RS型柔性套管式伸縮器讓您買得放心、用的舒心。
產品特點
柔性套管式伸縮器描述:
1. RS型柔性套管式伸縮器解決了原套管式伸縮器不產生偏角的問題,本產品大偏角可達5.85度;
2. 表中長度數值,均系無偏角時的數值;
3. 本伸縮器由橡膠圈密封,伸縮器本身不能承受軸向拉力,一般將它安裝在平直觀點管道上。若靠近彎管或丁字管安裝則應設置管道支墩,以免將伸縮器拉脫而漏水;
4. 本伸縮器中單盤短管可用外徑的鑄鐵直管代替;
5. 法蘭連接尺寸采用GB2555—81標準;
6. 表中1為安裝長度。


產品性能
RS型柔性套管式伸縮器技術參數
| 公稱通徑DN | 長度 | 重量(Kg) | ||
| Lmin | L | Lmax | ||
| 40 | 140 | 160 | 180 | 8.3 |
| 50 | 145 | 165 | 185 | 10.8 |
| 65 | 145 | 165 | 185 | 13.6 |
| 80 | 160 | 180 | 200 | 17.2 |
| 100 | 170 | 190 | 210 | 20.4 |
| 125 | 170 | 190 | 210 | 24.9 |
| 150 | 175 | 195 | 215 | 31.8 |
| 200 | 180 | 200 | 220 | 42.6 |
| 250 | 235 | 260 | 285 | 59.5 |
| 300 | 250 | 280 | 310 | 73.8 |
| 350 | 265 | 300 | 335 | 97.1 |
| 400 | 280 | 320 | 360 | 123 |
| 450 | 295 | 340 | 385 | 146 |
| 500 | 310 | 360 | 410 | 176 |
| 600 | 340 | 400 | 460 | 240 |
| 700 | 370 | 440 | 510 | 330 |
| 800 | 400 | 470 | 540 | 440 |
| 900 | 430 | 500 | 570 | 536 |
| 1000 | 450 | 525 | 600 | 675 |
| 1200 | 475 | 550 | 625 | 998 |
| 1400 | 500 | 580 | 660 | 1367 |
| 1600 | 530 | 610 | 690 | 1908 |
聯系人: 李經理
電話: 13679111256
QQ:603033916
座機: 02983331833
地址: 西安市未央區大明宮北辰五金批發基地1區7排11-14號
掃一掃關注我們