服務熱線
136-7911-1256
產品簡介:
SSQ型鑄鐵伸縮器也稱伸縮節、膨脹節、補償器、伸縮接頭。伸縮器在一定范圍內可軸向伸縮,也能在一定的角度內克服管道對接不同軸向而產生的偏移,能極大的方便閥門管道的安裝與拆卸,在管道允許伸縮量中可以自由伸縮,一旦越過其最大伸縮量就起到限位,確保管道的安全運行。
銷售熱線:
13679111256
產品介紹
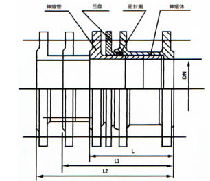
名稱:SSQ型鑄鐵伸縮器
SSQ型鑄鐵伸縮器也稱伸縮節、膨脹節、補償器、伸縮接頭。伸縮器在一定范圍內可軸向伸縮,也能在一定的角度內克服管道對接不同軸向而產生的偏移,能極大的方便閥門管道的安裝與拆卸,在管道允許伸縮量中可以自由伸縮,一旦越過其大伸縮量就起到限位,確保管道的安全運行。
SSQ型鑄鐵伸縮器主要為保障管道安全運行,具有以下作用:補償吸收管道軸向、橫向、角向熱變形;吸收設備振動,減少設備振動對管道的影響;吸收地震、地陷對管道的變形量。
產品特點
鑄鐵伸縮器詳細介紹:
1. 該產品為各種給排水管道、水塔、水泵、水表、閥門的安裝拆換提供了極大方便,給長距離管路因溫差伸縮起到了很好的調節作用。
2. 該產品內管材分為鑄鐵( HT )、鍍鋅( DX )和鋼制( SF )三種。工作壓力分 PN6 、 PN10 、 PN16 三種。
3. 安裝前須松開壓盤螺栓,將該產品拉至安裝長度,然后用對角法擰緊,切勿壓偏,如架空使用,兩端須安裝相應的固定支架。
4. 法蘭連接采用 GB4216.3 - 4126.5 標準。
5. 如選用其它規格可另行生產。
鑄鐵伸縮器用途:
伸縮器是泵、閥門,管道等設備與管道連接的新產品,通過全螺栓把它們連接起來,使其成為整體,并有一定的位移量,方便安裝。可承受管線的軸向壓力。這樣就可以在安裝維修時,根據現場安裝尺寸進行調整,在工作時,不僅提高工作效率,而切對泵、閥們等管道設備起到一定保護作用。
鑄鐵伸縮器適用介質:
本產品適用于輸送海水、淡水、冷熱水、飲用水、生活污水、原油、燃油、潤滑油、成品油、空氣、煤氣、溫度不高于250度的蒸汽和顆粒粉狀等介質。
鑄鐵伸縮器使用范圍:
由于伸縮器具有良好的綜合性能,所以它廣泛用于化工、建筑、給水、排水、石油、輕重工業、冷凍、衛生、水暖、消防、電力等基礎工程。
伸縮器具體分類:
SSQ型鑄鐵伸縮器,SF鋼制伸縮器,CS型熱力管道伸縮器,SSQ-1型套管式伸縮器,SSQ-2型套管式伸縮器,SSQ-3型套管式伸縮器,鋼型套管式伸縮器,插口式伸縮器,承盤式伸縮器,兩端法蘭限位防拉脫壓盤式伸縮器,法蘭式伸縮器,兩端法蘭伸縮器,兩端法蘭壓盤式限位伸縮器,耐高壓灰管大位移伸縮器。
鑄鐵伸縮器安裝注意事項:
1、伸縮器在安裝前應先檢查其型號、規格及管道配置情況,必須符合設計要求。
2、對帶內套筒的伸縮器應注意使內套筒子的方向與介質流動方向一致,鉸鏈型伸縮器的鉸鏈轉動平面應與位移轉動平面一致。
3、需要進行“冷緊”的伸縮器,預變形所用的輔助構件應在管路安裝完畢后方可拆除。
4、嚴禁用伸縮器變形的方法來調整管道的安裝超差,以免影響伸縮器的正常功能、降低使用壽命及增加管系、設備、支承構件的載荷。
5、安裝過程中,不允許焊渣飛濺到波殼表面,不允許波殼受到其它機械損傷。
6、管系安裝完畢后,應盡快拆除波伸縮器上用作安裝運輸的黃色輔助定位構件及緊固件,并按設計要求將限位裝置調到規定位置,使管系在環境條件下有充分的補償能力。
7、伸縮器所有活動元件不得被外部構件卡死或限制其活動范圍,應保證各活動部位的正常動作。
8、水壓試驗時,應對裝有伸縮器管路端部的次固定管架進行加固,使管路不發生移動或轉動。對用于氣體介質的伸縮器及其連接管路,要注意充水時是否需要增設臨時支架。水壓試驗用水清洗液的96氯離子含量不超過25PPM。


產品性能
SSQ型鑄鐵伸縮器安裝數據表
| 公稱通徑 | 小長度L | 安裝長度L1 | 大長度L2 |
| 40 | 140 | 170 | 200 |
| 50 | 140 | 170 | 200 |
| 65 | 160 | 205 | 250 |
| 80 | 180 | 225 | 270 |
| 100 | 200 | 250 | 300 |
| 125 | 220 | 250 | 300 |
| 150 | 220 | 270 | 320 |
| 200 | 240 | 290 | 320 |
| 250 | 260 | 315 | 370 |
| 300 | 280 | 340 | 400 |
| 350 | 290 | 350 | 410 |
| 400 | 300 | 360 | 420 |
| 450 | 320 | 385 | 450 |
| 500 | 320 | 385 | 450 |
| 600 | 350 | 415 | 480 |
| 700 | 370 | 440 | 510 |
| 800 | 390 | 460 | 530 |
| 900 | 420 | 495 | 570 |
| 1000 | 440 | 515 | 590 |
| 1200 | 490 | 570 | 650 |
| 1400 | 520 | 605 | 690 |
| 1600 | 550 | 640 | 730 |
| 1800 | 590 | 680 | 770 |
| 2000 | 630 | 720 | 810 |
| 2200 | 670 | 760 | 850 |
| 2400 | 710 | 800 | 890 |
| 2600 | 750 | 840 | 930 |
| 2800 | 290 | 880 | 970 |
| 3000 | 840 | 920 | 1010 |
| 3200 | 880 | 960 | 1050 |
| 3400 | 920 | 1000 | 1090 |
下一篇:
RS型柔性套管式伸縮器聯系人: 李經理
電話: 13679111256
QQ:603033916
座機: 02983331833
地址: 西安市未央區大明宮北辰五金批發基地1區7排11-14號
掃一掃關注我們